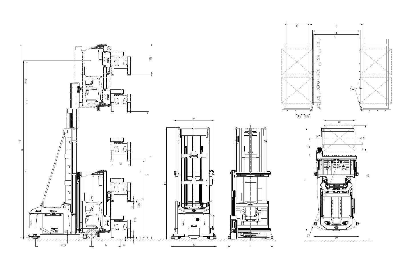
载重1600kg,最大起升高度18米

人上型三向叉车

 

产品详细描述

全能实力,高效释放
重新定义窄巷道仓储新纪元

 18米超高起升 高空堆垛拣选一体  


VUE人上型三向叉车是兼备堆垛、拣选功能的一款窄巷道叉车,强大的承载能力

保证了车辆在高空作业状态下的稳定性和安全性。

相较于传统的窄巷道叉车,VUE拥有了突破性的高度提升和卓越的承载能力,

在灵活性和稳定性方面也表现得更加优异。

采用电动叉头,三向交流控制系统和稳定的电磁导向技术,让堆垛拣选作业更稳定高效。



产品参数

 

 

 

 

 



 

载荷曲线&三视图

三视图

载荷曲线图

视频展示

人上行三向堆垛车

人上型三向叉车