三向叉车

1.55米极窄通道,最大起升高度9.5米

站驾人下型三向叉车

 VDA系列人下行三向堆垛车

产品详细描述

VDA站驾人下型三向叉车

特窄作业通道  更高空间价值

卓一VDA系列站驾人下型三向叉车是一款适合极窄巷道堆垛作业的叉车,最大起升高度9.5m,最大载荷1600kg。采用180度电转向叉头,装取货物更便捷,电动转向货叉做为三向叉车核心组件,保证货叉转向时的平稳运行,同时也更节能,更高效。
全车配备多重主动安全防护,舒适的操作环境,丰富的可选配置,最窄作业通道仅为1.55m,助力企业提升仓储容积率。



产品参数

 



 

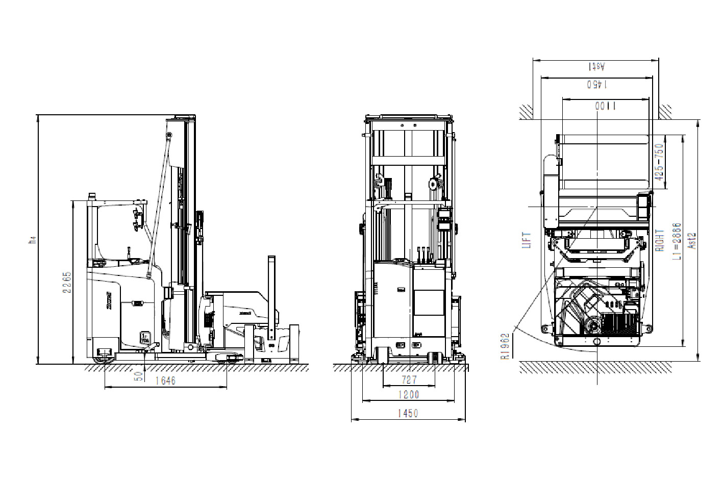
载荷曲线&三视图

三向叉车三视图

三向叉车载荷曲线

视频展示

三向叉车视频案例

站驾人下型三向叉车